Casale Castiglione della Pescaia
Castiglione della Pescaia - Via del Romitorio Rif: AQ-2103
Superficie 315 m²
Locali 1
Tipologia Casale
Classe Energ. G
Stato Buono
Descrizione
RISTORANTE CON CAMERE IN MAREMMA TOSCANA -Un Gioiello Medioevale della Maremma Toscana-
Un po' di Storia
Le origini di Buriano risalgono al X secolo, quando sorse come feudo dei Conti Aldobrandeschi. Il borgo conobbe un periodo di grande splendore sotto il dominio dei Lombardi, per poi passare sotto il controllo di Siena e dei Pisani.
Buriano, incastonato tra il verde della Maremma e il cielo azzurro, è un piccolo borgo medievale che conserva intatto il suo fascino antico. Situato nel comune di Castiglione della Pescaia, in provincia di Grosseto, offre ai visitatori un'esperienza autentica tra storia, natura e tradizioni.
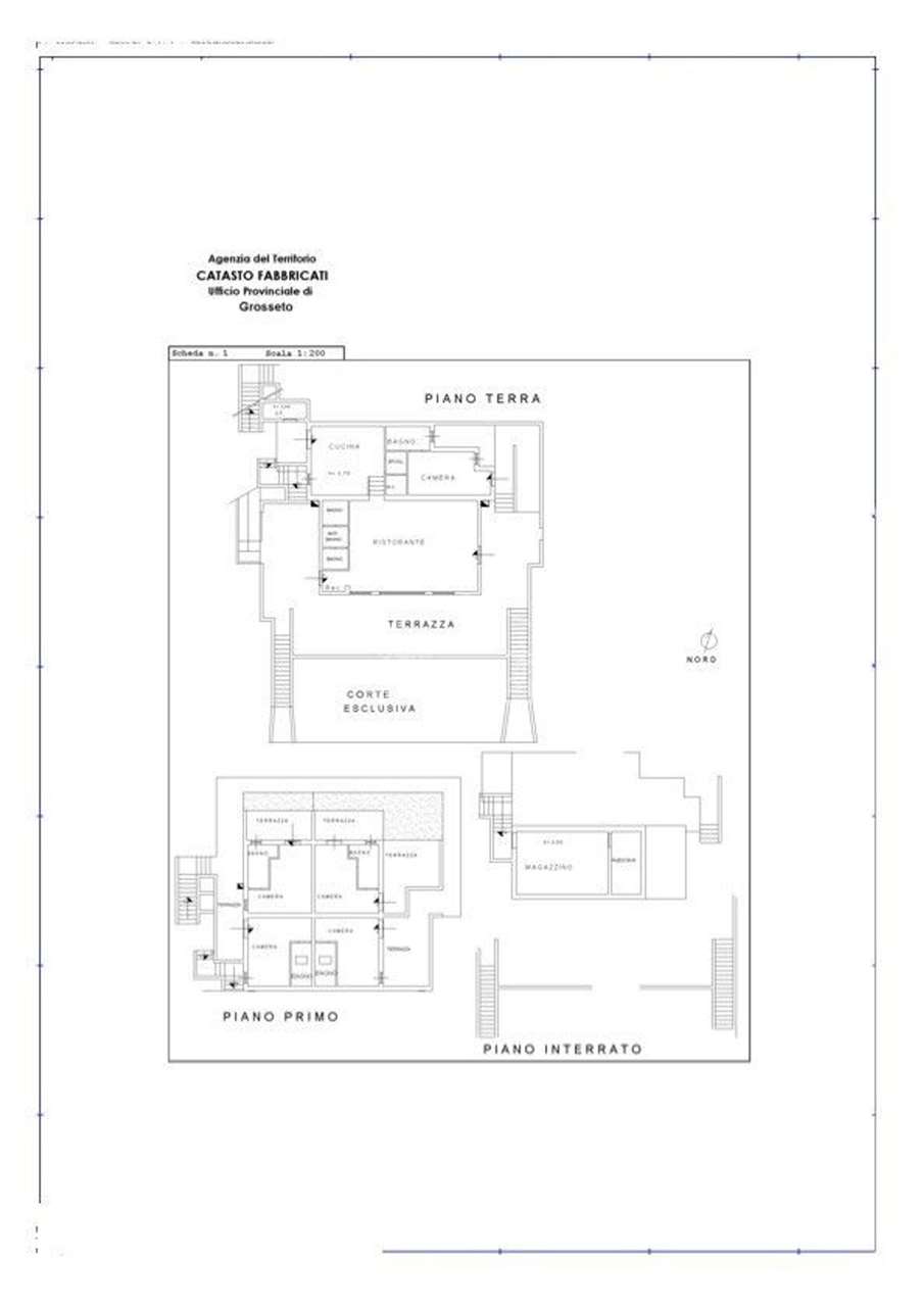
Descrizione: Ubicazione: BURIANO, nel comune di Castiglione della Pescaia, è posizionato in una zona strategica che rende facile sia raggiungere le aree marittime, sia inoltrarsi nell’entroterra. Rapidissimo raggiungere il lungomare toscano: le più amate sono la spiaggia delle Rocchette, la spiaggia di Punta Ala e la spiaggia di Cala ViolinaDescrizione dell’immobile: RISTORANTE CON CAMEREAl piano interrato: due magazzini, locale tecnico, cantina e due locali adibiti a deposito occasionale, il tutto per una superficie commerciale di mq. 95,00; Al piano terreno: sala ristorante, disimpegno e due bagni per i clienti, cucina con antibagno e bagno per i dipendenti ed una ampia terrazza coperta, oltre ad un vano tecnico.
Il tutto per una superficie commerciale di mq. 100 per l’immobile e di mq. 110 per la terrazza; Al piano terreno: una camera con bagno, della superficie commerciale di mq. 25,00. Al piano primo: quattro camere con bagno privato, della superficie commerciale di mq. 95, oltre a terrazze di mq. 63. Consistenza: il fabbricato nel suo complesso ha una superficie commerciale di mq. 315 circa, oltre a terrazze di mq. 173 circaProposta esclusiva: Per maggiori informazioni, contattare l'agenzia. Dettagli aggiuntivi: La proprietà è situata in una zona molto tranquilla e silenziosa, a ridosso di una passeggiata con sentiero per i villeggianti. Immobile dotato di tutti i comfort. Controfinestre termiche
IMMOBILE CERTIFICATO Agenzia immobiliare Aquileia: Per maggiori informazioni, contattare l'agenzia al Rif AQ-2103
Note: Si prega di contattare l'agenzia immobiliare per avere maggiori dettagli e per fissare un appuntamento per la visione dell'immobile.
Un po' di Storia
Le origini di Buriano risalgono al X secolo, quando sorse come feudo dei Conti Aldobrandeschi. Il borgo conobbe un periodo di grande splendore sotto il dominio dei Lombardi, per poi passare sotto il controllo di Siena e dei Pisani.
Buriano, incastonato tra il verde della Maremma e il cielo azzurro, è un piccolo borgo medievale che conserva intatto il suo fascino antico. Situato nel comune di Castiglione della Pescaia, in provincia di Grosseto, offre ai visitatori un'esperienza autentica tra storia, natura e tradizioni.
Descrizione: Ubicazione: BURIANO, nel comune di Castiglione della Pescaia, è posizionato in una zona strategica che rende facile sia raggiungere le aree marittime, sia inoltrarsi nell’entroterra. Rapidissimo raggiungere il lungomare toscano: le più amate sono la spiaggia delle Rocchette, la spiaggia di Punta Ala e la spiaggia di Cala ViolinaDescrizione dell’immobile: RISTORANTE CON CAMEREAl piano interrato: due magazzini, locale tecnico, cantina e due locali adibiti a deposito occasionale, il tutto per una superficie commerciale di mq. 95,00; Al piano terreno: sala ristorante, disimpegno e due bagni per i clienti, cucina con antibagno e bagno per i dipendenti ed una ampia terrazza coperta, oltre ad un vano tecnico.
Il tutto per una superficie commerciale di mq. 100 per l’immobile e di mq. 110 per la terrazza; Al piano terreno: una camera con bagno, della superficie commerciale di mq. 25,00. Al piano primo: quattro camere con bagno privato, della superficie commerciale di mq. 95, oltre a terrazze di mq. 63. Consistenza: il fabbricato nel suo complesso ha una superficie commerciale di mq. 315 circa, oltre a terrazze di mq. 173 circaProposta esclusiva: Per maggiori informazioni, contattare l'agenzia. Dettagli aggiuntivi: La proprietà è situata in una zona molto tranquilla e silenziosa, a ridosso di una passeggiata con sentiero per i villeggianti. Immobile dotato di tutti i comfort. Controfinestre termiche
IMMOBILE CERTIFICATO Agenzia immobiliare Aquileia: Per maggiori informazioni, contattare l'agenzia al Rif AQ-2103
Note: Si prega di contattare l'agenzia immobiliare per avere maggiori dettagli e per fissare un appuntamento per la visione dell'immobile.
L'immobile è vicino a...
| Negozi | Alimentari SMA (3.0 km) Calzature Badii (6.3 km) InCoop (6.3 km) tuttogiardino (6.3 km) Panificio (8.1 km) Fara (8.2 km) |
|---|---|
| Bar e ristoranti | Il cantuccio (1.7 km) Ristorante Trattoria Etrusca (3.0 km) Il Ritro Di Be (3.0 km) Bar Il Frantoio (3.0 km) Al Forno (3.1 km) Ristorante Macchiascandona albergo (3.5 km) |
| Fermate autobus | Grosseto, Stazione FS (12.6 km) Grosseto, Stazione FS (12.6 km) Fortezza (12.9 km) 4 Novembre Porto (13.0 km) Fermata Bus Navetta per mare (13.5 km) Fermata Bus Navetta per mare (13.6 km) |
| Stazioni treno | Montepescali (8.5 km) Giuncarico (9.6 km) Grosseto (12.7 km) Gavorrano (13.4 km) |
| Parcheggi | Museo (3.1 km) Cimitero (3.4 km) Piazza Alcide De Gasperi (8.2 km) Piazza Giovanni XXIII (8.3 km) Piazza della Cooperazione (8.4 km) Parcheggio Comune (9.7 km) |
| Università | Universita di Siena a Grosseto (13.6 km) |
| Cinema e teatri | Cinema Castello (11.0 km) Teatro delle Rocce (11.6 km) The Space Cinema (12.4 km) Cinema Stella (12.8 km) Cinema nel Chiostro (13.4 km) Teatro Moderno (13.5 km) |
| Scuole | Scuola Elementare (8.0 km) Istituto Comprensivo Statale "Orsino Orsini" (11.5 km) Scuola primaria Renato Fucini (11.7 km) Scuola media Giambattista Vico (11.8 km) Scuola primaria Paride Pascucci (11.9 km) Scuola primaria Andrea da Grosseto (12.7 km) |
| Aeroporti | Aeroporto di Grosseto (11.1 km) Aviosuperficie Punta Ala (13.0 km) |
| Ospedali | Salus centro multiservizi (12.1 km) Ospedale Misericordia di Grosseto (13.6 km) |
Planimetrie
